Contenuto
Bologna - Progettazione e realizzazione di infrastrutture verdi e blu in aree urbane e periurbane, per rafforzare la protezione e la preservazione della natura, la biodiversità e le infrastrutture verdi, anche in città, e ridurre tutte le forme di inquinamento. La Giunta Regionale, su proposta dell’Assessorato a Cultura e Paesaggio, ha deliberato lo stanziamento di ulteriori fondi da destinare al bando per le infrastrutture verdi e blu, finanziato con 2,5 milioni di euro di risorse europee del Programma regionale Fesr 2021-2027.
Queste risorse permetteranno di scorrere la graduatoria dei progetti finora ammessi, che in questo modo diventano in totale 20.
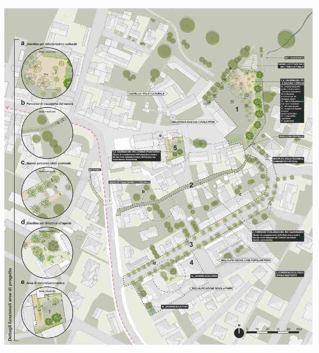
Ai 17 progetti finanziati in precedenza se ne aggiungono ora altri tre. Si tratta del progetto del Comune di Gambettola (Fc) che prevede la rigenerazione di un’area verde, in parte utilizzata per il nuovo edificio scolastico, con la realizzazione di un anello ciclopedonale lungo il Rio Rigoncello, delimitato da specie arboree e arbustive (contributo 729.264 euro); del progetto di riqualificazione dell’Orto Botanico di Bologna, presentato dall’Università di Bologna, che prevede, tra l’altro, il potenziamento del corredo arboreo e arbustivo con l’impianto di 112 nuovi alberi (contributo 1.418.522 euro). Infine, il progetto del Comune di Calendasco (Pc) che propone la riqualificazione di tre aree verdi e la de-cementificazione di spazi edificati per restituirli alla naturalità (contributo 264.326 euro).
I tre nuovi interventi riguardano una superficie di circa 7,50 ettari che, sommati agli interventi già finanziati, coinvolgono complessivamente oltre 236 ettari.
Il contributo complessivo stanziato è di 23.875.115 euro, oltre 5 milioni in più rispetto alla dotazione prevista dal bando, inizialmente pari a 18.000.000 di euro. La realizzazione di infrastrutture verdi e blu è una delle operazioni di importanza strategica (OIS) per il PR Fesr 2021-2027, e fornisce un contributo fondamentale al raggiungimento degli obiettivi del programma.
Maggiori informazioni sul bando a questo link .
Qui il dettaglio delle operazioni di importanza strategica finanziate dalla Regione per il periodo 2021-2027.
Barbara Musiani
In allegato: foto e schede dei tre progetti
Allegati
Ultimo aggiornamento: 18-06-2024, 14:51
